大中小
重庆市渝北区大盛镇人民政府
关于印发渝北区大盛镇2021年农村存量危房整治
工作方案的通知
大盛府发〔2021〕40号
各村(居)、各部门:
《渝北区大盛镇2021年农村存量危房整治工作方案》已经镇党委、政府同意,现印发给你们,请遵照执行。
重庆市渝北区大盛镇人民政府
2021年6月10日
(此件公开发布)
渝北区大盛镇2021年农村存量危房整治工作方案
为深入贯彻落实习近平总书记关于改善农村人居环境的重要指示精神和市区工作要求,全面推进乡村振兴战略,切实改善我镇农村居民居住环境,根据《渝北区农村危房整治实施方案》(渝北府办〔2020〕82号)精神,特制定本方案。
一、统一思想、提高认识
农村危旧房治理改造是实施乡村振兴战略的重要组成部分,农村危房不仅事关群众生命财产安全,也影响我镇农村公共安全,做好农村危房整治工作,是一项重要的民生工程。各村居要切实增强做好C、D级危房整治工作的责任感和紧迫感,广泛宣传危房整治工作的相关精神,认真制定方案和落实工作措施,坚定不移地推进农村危房整治工作。在抓好四类重点对象危房整治同时,持续推进农村其他对象唯一住房为C、D级危房的整治工作。
二、整治原则目标和实施主体
(一)整治原则。
1.全面覆盖。农村危房整治工作要覆盖全镇所有农村危房,基本消除镇内存量危房。
2.突出主体。尊重农民主体地位,充分尊重农民意愿,通过宣传、培训强化农民的主体意识,充分激发农民群众主动性、积极性,促使他们自觉地投入到农村危房整治工作中。
3.风貌统一。农村危房整治要严格按照我镇统一风貌形式进行实施,有效合理运用传统民居元素,对屋顶、门窗、墙裙等重点部位进行建筑美化特色化处理,确保农房建筑风格鲜明、色彩协调、整洁美观。
(二)整治目标
全面动态实现农村建档立卡脱贫户等重点对象住房安全有保障的目标,加快推进一般农户危房整治工作,确保“危房不住人、人不住危房”。
(三)实施主体
全镇辖区内所有CD级危房整治由农户自愿申请,自行组织实施,经验收合格后再发放补助资金。
三、整治范围、方式及补助标准
对全镇所有农村危房进行全面整治,结合整治对象实际情况,由各村和镇相关部门负责分类整治,优先解决特困家庭的住房安全问题,有关补助资金由镇统筹解决。
(一)有人居住C、D级危房整治
1.建档立卡脱贫户等重点对象。建档立卡脱贫户等重点对象指居住在农村C、D级危房中的建档立卡脱贫户、农村分散供养特困人员、低保户。
C级危房:采取修缮加固并统一风貌的方式进行整治(含坡 屋顶改造),按照3.8万元/户标准实施补助。
D级危房:采取拆除重建的方式进行整治,根据我镇标准图集进行建设,按照每户1000元/平方米的标准实施土建补助,其中:1人户补助建筑面积为40平方米,2人户补助建筑面积为60平方米,3人及以上户补助建筑面积为80平方米。
2.居住D级危房的特困家庭。特困家庭指建档立卡脱贫户等重点对象中的1人居住的农村分散供养特困人员,2人居住的无儿女或单亲子女未满16岁等无劳动能力家庭,3人及以上居住的贫困残疾人或大病且子女未满16岁等无劳动能力家庭。优先解决居住D级危房的特困家庭住房安全问题,按照居住人数及农户意愿进行分类整治。
(1)敬老院集中供养方式。对1人居住的农村分散供养特困人员,优先积极动员其住进敬老院集中供养。
(2)采取拆除重建的方式进行整治。根据我镇标准图集进行建设,按照1300元/平方米(含税费)的标准实施土建及装修补助,其中:1人户补助建筑面积为40平方米,2人户补助建筑面积为60平方米,3人及以上户补助建筑面积为80平方米。同时,配备床、衣柜等基本生活用品,达到拎包入住标准。
环境整治补助:建档立卡脱贫户等重点对象、特困家庭修缮加固或拆除重建原危房后,均按照0.8万元/户的标准安排环境整治资金,包含厨房、厕所、三格式化粪池、地坝、散水、后阳沟、入户道路、2颗直径2公分及以上花树或者果树、家禽圈养。
以上建档立卡脱贫户等重点对象、特困家庭,若选择长期通过投亲靠友或租用安全房方式解决住房安全的,可按照每户300元/月的标准实施补助;若选择修缮加固或拆除重建方式解决住房安全的,应通过投亲靠友或租用安全房方式过渡解决住房安全,可按照每户300元/月的标准实施补助,按实结算,最多不超过6个月。
3.C、D级唯一住房户。以户为单位,对在农村无其他安全住房的C、D级住房户实施危房整治。
(1)C级危房。按照镇规定风貌进行修缮加固整治,重点整治墙体开裂、房盖漏水、厨厕不达标、室内外环境脏乱差等突出问题。
补助标准及兑现方式:小青瓦或琉璃瓦进行房盖整治补助标准为2.5万元。整治完成后,由具有相应资质的第三方公司据实验收,按最高不超过2.5万元/户发放补助资金。
(2)D级危房。
①拆除重建。若按照我镇规定风貌对原危房进行拆除重建的,按照3.5万元/户的标准给予建房补助。同时,按照0.8万元/户的标准补助环境整治资金到户。环境整治补助:一般户拆除重建原危房后,均按照0.8万元/户的标准安排环境整治资金,包含厨房、厕所、三格式化粪池、地坝、散水、后阳沟、入户道路、2颗直径2公分及以上花树或者果树、家禽圈养。
②拆除固化。由各村组织专业施工队伍进行拆除,在拆除前固化相关数据并存档,今后按原房原权属对待。同时,按照100元/平方米的标准补助给农户,按照20元/平方米的标准补助拆除费给施工方。
③实施土地复垦政策。符合农村建设用地复垦条件的,可由农户自愿申请,按照农村建设用地复垦政策执行。
④镇上统筹环境资金。镇上按照0.2万元/户标准统筹使用CD级危房环境整治补助资金。
以上C、D级唯一住房户选择修缮加固或拆除重建方式解决 住房安全的,通过投亲靠友或租用安全房方式过渡解决住房安全,可按照每户300元/月的标准实施补助,过渡期限为6个月。长期无人居住的不得享受租房政策。
(二)无人居住C、D级危房整治
1.拆除固化。由各村组织专业施工队伍进行拆除,在拆除前固化相关数据并存档,今后按原房原权属对待。同时,按照100元/平方米的标准补助给农户,按照20元/平方米的标准补助拆除费给施工方。
2.实施土地复垦政策。符合农村建设用地复垦条件的,可由农户自愿申请,按照农村建设用地复垦政策执行。
(三)建新未拆旧房屋整治
按照《土地管理法》第六十二条“农村村民一户农户只能拥有一处宅基地”规定,对于新建房屋后原旧房未拆除的,各村应督促农户安全自拆,及时排除安全隐患。
2018年3月12日以前建新未拆旧的,由各村负责,对旧房进行强制拆除,按照20元/平方米标准补助拆除费给各村集体。
2018年3月12日以后建新未拆旧的,不得进行新房住宅权属登记,并暂停享受建房有关补助政策。各村应积极动员农户对原危房进行自拆,若拒不拆除原旧房的,镇村组织专业队伍进行强制拆除,拆除费在建房补助款中扣除。
所有通过以上方式整治房屋经验收合格后,一次性发放补助费用。
四、工作措施
(一)强化组织领导。成立以镇长李觅同志为组长,张义、倪佳、黄刚、刘畅、齐训山、黄东同志为成员的大盛镇农村危房整治工作领导小组,全面负责全镇农村危房整治工作。下设办公室在村建中心,由黄东同志兼任办公室主任,镇相关科室负责人、各村驻村工作组长和各村书记为成员,负责全镇危房整治日常工作。
(二)强化责任落实。一是驻村领导包片,驻村组包村,机关干部和村干部包户,整体推进危房整治工作。二是由镇里统筹协调资金,村建中心按照《农村危险房屋鉴定技术导则(试行)》,做好农村C、D级危房的认定,建立完善农村存量危房台账,配合相关部门认定危房整治对象;三是各村要配合相关部门对农村C、D级存量危房整治工作进行检查验收,并做好整治资料的收集和档案管理。
(三)强化施工管理。各村要加强工程质量安全和进度的监管,对新建房屋基础、墙体、梁柱、门、窗、屋顶、厨房、厕所、三格式化粪池等农村危房整治具体项目,进行监督检查。镇规建环办、村建中心要加强督促指导工作。
(四)强化资金管理。各村要建立完善公示制度,充分尊重农户的知情权、参与权;要建立整治台账,对农村存量危房整治资金实行专账专户、专款专用,严禁出现贪污挪用、截留私分、优亲厚友、虚报冒领等现象。
(五)强化宣传引导。各村要加强宣传引导,召开动员会、院坝会,进行入户动员,激发群众参与农村存量危房整治的积极性,为改善农村住房安全创造良好氛围。
(六)强化信息公开。各村要严格执行农户自愿申请、自行组织实施、村评议、镇审批等程序。要建立健全公示制度,补助对象基本信息和各审查环节的结果要及时在村务公开栏、镇政务公开栏公示,并设立投诉电话,主动接受群众监督。公示期内对农村危房整治对象提出异议的,经调查属实,取消其危房整治补助资格。
(七)强化信息报送。各村要及时掌握农村存量危房整治进度,加强农村存量危房整治工作情况的报送,每周四前将工作进展情况报送至镇农村危房整治工作领导小组办公室。
(八)强化竣工验收。农村存量危房整治完成后,经农户申请、村(社)初核、镇验收、区住房城乡建委抽查验收合格等程序后,方可兑现有关补助政策。
C级危房整治后应满足以下要求:危险点构件已更换或维修;房屋排除危险隐患,达到住房安全要求;厕所应包含蹲便器、冲水装置等,实现无害化卫生厕所;厨房应干净整洁卫生、满足基本功能;三格式化粪池应按区卫生健康委要求,对照图纸修建。
D级危房拆除新建后应满足以下要求:选址符合要求;基础牢靠,结构稳定,强度满足要求;围护结构和非结构构件与主体结构连接牢固;外墙刷白或浅色墙面、房屋观感质量符合要求;具备无害化卫生厕所,做到人畜分离;三格式化粪池应按区卫生健康委要求,对照图纸修建;地坝硬化、房屋墙脚散水硬化、房屋周边环境干净整洁、院落栽植2棵直径2cm以上花树或者果树、沟渠硬化畅通、强弱电线路规范。
本方案自2021年1月1日起执行,以前相关政策与本方案不一致的,以本方案为准。
附件:1.大盛镇C级危房整治建设及相关费用说明
2.大盛镇2021年C级危房危房整治价格表
附件1
大盛镇C级危房整治建设及相关费用说明
一、C级危房修缮加固建设标准
(一)屋顶。统一改建为4.5水坡屋顶,原则上使用深灰色琉璃瓦,屋顶均需做棕色吊檐。
1.屋脊。屋顶脊檩使用小头直径12cm以上圆木,并用三合土压脊,分主脊和边脊二种。屋盖与墙结合部必须做好包水。
2.吊檐。吊檐板使用厚度2cm、宽度18.5cm、长度4米的锯材,材质为香杉木,接头处做榫卯结构连接,刷棕色漆。
3.琉璃瓦。使用30cmx40cm欧式连锁瓦(单块重量5斤左右),统一颜色,采用深灰色。使用琉璃瓦时,次檩选用小头直径8cm以上的香杉木,中对中间距不大于70cm,桷板宽度8cm ,厚度1.5cm以上,间距不大于25cm,挂瓦条截面尺寸3cmx2.5cm,间距不大于15.5cm,第一排挂瓦条距檐口30cm,钉条2根,屋脊处最后一排需2根重叠,以抬高瓦面,前后做水泥挑。
(二)外墙。墙体内外表面补缝;外墙上的管线进行规范,不得私拉乱接,明管横平竖直,入户强弱电线要穿扁平线管;如墙脚以下需安装水管,需下地10cm以上;烟囱要超过屋顶,使用红砖,做三面6cm斗平砖、加钢筋锚固、外面搓沙,至屋顶外(含屋顶防水)。
(三)厕所。卫生厕所内空长1.5m、宽1.2m,加盖琉璃瓦或现浇盖板(施工内容包括:12砖墙,内外抹灰,高2.2m,蹲便器一套,厕所门一扇,地漏、水、电安装、洗澡水与污水分开排放窗子)。
(四)厨房。厨房地面做硬化处理,柴灶长1.2mx宽1.2m,灶体用24砖墙,中间用泥土回填,灶平面用瓜米石铺设,邻墙面贴一线200mmx300mm白色瓷砖,灶外立面搓沙。灶台规格为1.2mx0.6mx0.06m,灶台板用直径6mm、间隔横纵0.2m铺设钢筋现浇,表面用瓜米石抹平,灶台脚用24红砖砌成,高0.8m,双面搓沙。建设干净整洁卫生、布局合理、满足基本功能、烟气排放良好的清洁厨房。
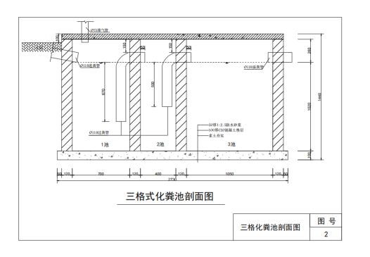
(五)三格式化粪池。按卫生健康委标准,严格做好三格式化粪池建设。




(六)环境建设。房屋内外干净整洁,柴草堆码整齐,屋内物品摆放整齐;庭院院坝应进行硬化;房前屋后,沟涵畅通,无污水乱排放;房前适当位置栽种直径2cm以上果树或花树2颗。
二、C级危房修缮加固相关费用说明
(一)C级危房修缮加固补助经费。C级危房修缮加固总造价为2.5万元(其中厕所0.2万元、厨房0.1万元、砖砌三格式化粪池0.25万元)。
(二)关于房盖、抹灰超量部分说明。农户自行修缮加固超量部分由农户自行负责。如农户委托代建方修缮加固的,琉璃瓦房盖面积超过130㎡、外墙面抹灰面积超过135㎡(包含三格式化粪池、卫生厕所、厨房),代建方自行与农户协商解决超量所产生的费用;琉璃瓦房盖屋面积超过170㎡,无抹灰(含三格式化粪池、卫生厕所、厨房等设施在整治前已建好),代建方自行与农户协商解决超量所产生的费用。
(三)一般农户CD级危房整治租房补助标准
一般农户2021年修建房屋按实际租房月数补助,最高不超过6个月。资料必须提供从修建之日起往前推六个月的水费和电费发票证明该农户在此房屋居住(例:该农户从2020年8月修缮加固危房,需提供2020年2月、3月、4月、5月、6月、7月水电费发票)。
重庆市渝北区大盛镇党政办公室 2021年6月10日印发